Performance and Reliability
High Efficiency Output: Low-loss silicon steel laminated stator design achieves a system efficiency of 88%–92%, comparable to some high-end brushless DC motors.
Stable Torque Across a Wide Speed Range: A special rotor slot structure ensures stable output torque across a wide speed range with a fluctuation rate of less than 3%.
High Temperature Resistance: A non-magnetic, rotor-winding-free structure avoids the risk of demagnetization; a Class H (180°C) insulation system allows for continuous operation in high-temperature environments.
Long Lifespan Design: High-temperature sealed bearings result in low noise and vibration, ensuring stable and reliable long-term continuous operation.
Consistency and Quality Control
Overall vibration value below 2.5 mm/s
Full load efficiency error not exceeding ±3%
Long-term thermal stability verified through 8-hour high and low temperature cycle testing
Fully automatic dynamic balancing inspection ensures smooth and noiseless rotation
Because of these process standards, every batch of AURIC industrial reluctance motors exhibits highly consistent performance.
Customization and Compatibility
Rated Voltage Range: 24V–600V (AC/DC compatible)
Power Range: 0.5HP–20HP
Insulation Class: Class F or Class H
Optional Signal Interfaces: PWM, CAN, Analog Input
Supports compatibility with standard reluctance motor controllers or dedicated Auric control drive modules
This flexible design allows for easy integration into various equipment such as automated production lines, CNC equipment, and ventilation systems.
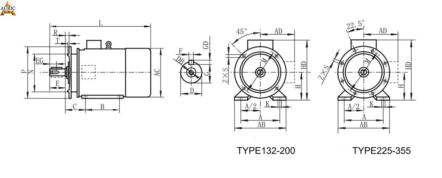
Outline dimension table



| INSTALLATION DIMENSIONS(mm) | ||||||||||||
| Type | A | AB | AC | AD | B | C | D | DB | E | EG | F | G |
| 132S | 216 | 270 | 275 | 210 | 140 | 89 | 38 | M12 | 80 | 28 | 10 | 33 |
| 132M | 216 | 270 | 275 | 210 | 178 | 89 | 38 | M12 | 80 | 28 | 10 | 33 |
| 160M | 254 | 320 | 330 | 255 | 210 | 108 | 42 | M16 | 110 | 36 | 12 | 37 |
| 160L | 254 | 320 | 330 | 255 | 254 | 108 | 42 | M16 | 110 | 36 | 12 | 37 |
| 180M | 279 | 355 | 380 | 280 | 241 | 121 | 48 | M16 | 110 | 36 | 14 | 42.5 |
| 180L | 279 | 355 | 380 | 280 | 279 | 121 | 48 | M16 | 110 | 36 | 14 | 42.5 |
| 200L | 318 | 395 | 420 | 305 | 305 | 133 | 55 | M20 | 110 | 42 | 16 | 49 |
| 225S | 356 | 435 | 470 | 335 | 286 | 149 | 60 | M20 | 140 | 42 | 18 | 53 |
| 225M | 356 | 435 | 470 | 335 | 311 | 149 | 60 | M20 | 140 | 42 | 18 | 53 |
| 250M | 406 | 490 | 510 | 370 | 349 | 168 | 65 | M20 | 140 | 42 | 18 | 58 |
| 280S | 457 | 550 | 580 | 410 | 368 | 190 | 75 | M20 | 140 | 42 | 20 | 67.5 |
| 280M | 457 | 550 | 580 | 410 | 419 | 190 | 75 | M20 | 140 | 42 | 20 | 67.5 |
| 315S | 508 | 635 | 645 | 530 | 406 | 216 | 80 | M20 | 170 | 42 | 22 | 71 |
| 315M | 508 | 635 | 645 | 530 | 457 | 216 | 80 | M20 | 170 | 42 | 22 | 71 |
| 315L | 508 | 635 | 645 | 530 | 508 | 216 | 80 | M20 | 170 | 42 | 22 | 71 |
| 355M | 610 | 730 | 710 | 655 | 560 | 254 | 95 | M24 | 170 | 50 | 25 | 86 |
| 355L | 610 | 730 | 710 | 655 | 630 | 254 | 95 | M24 | 170 | 50 | 25 | 86 |
| Type | GD | H | HD | HF | L | M | N | P | R | S | T | Z |
| 132S | 8 | 132 | 345 | 315 | 540 | 265 | 230 | 300 | 0 | 14.5 | 4 | 4 |
| 132M | 8 | 132 | 345 | 315 | 580 | 265 | 230 | 300 | 0 | 14.5 | 4 | 4 |
| 160M | 8 | 160 | 420 | 385 | 710 | 300 | 250 | 350 | 0 | 18.5 | 5 | 4 |
| 160L | 8 | 160 | 420 | 385 | 755 | 300 | 250 | 350 | 0 | 18.5 | 5 | 4 |
| 180M | 9 | 180 | 455 | 430 | 760 | 300 | 250 | 350 | 0 | 18.5 | 5 | 4 |
| 180L | 9 | 180 | 455 | 430 | 800 | 300 | 250 | 359 | 0 | 18.5 | 5 | 4 |
| 200L | 10 | 200 | 505 | 480 | 860 | 350 | 300 | 400 | 0 | 18.5 | 5 | 4 |
| 225S | 11 | 225 | 560 | 535 | 905 | 400 | 350 | 450 | 0 | 18.5 | 5 | 8 |
| 225M | 11 | 225 | 560 | 535 | 935 | 400 | 350 | 450 | 0 | 18.5 | 5 | 8 |
| 250M | 11 | 250 | 615 | 595 | 1020 | 500 | 450 | 550 | 0 | 18.5 | 5 | 8 |
| 280S | 12 | 280 | 680 | 650 | 1075 | 500 | 450 | 550 | 0 | 18.5 | 5 | 8 |
| 280M | 12 | 280 | 680 | 650 | 1125 | 500 | 450 | 550 | 0 | 18.5 | 5 | 8 |
| 315S | 14 | 315 | 845 | --- | 1315 | 600 | 550 | 660 | 0 | 24 | 6 | 8 |
| 315M | 14 | 315 | 845 | --- | 1425 | 600 | 550 | 660 | 0 | 24 | 6 | 8 |
| 315L | 14 | 315 | 845 | --- | 1425 | 600 | 550 | 660 | 0 | 24 | 6 | 8 |
| 355M | 14 | 315 | 1010 | --- | 1720 | 740 | 680 | 800 | 0 | 24 | 6 | 8 |
| 355L | 14 | 315 | 1010 | --- | 1720 | 740 | 680 | 800 | 0 | 24 | 6 | 8 |
| INSTALLATION DIMENSIONS(mm) | |||||||||||
| Type | A | AB | AC | AD | B | C | D | DB | E | EG | F |
| 355 | 630 | 760 | 770 | 760 | 800 | 224 | 110 | M24 | 210 | 50 | 28 |
| 400 | 710 | 840 | 860 | 900 | 900 | 224 | 120 | M24 | 210 | 50 | 32 |
| 450 | 800 | 990 | 960 | 940 | 1000 | 250 | 130 | M24 | 210 | 50 | 32 |
| Type | G | GD | H | HD | L | M | N | P | S | T | Z |
| 355 | 100 | 16 | 355 | 1130 | 2070 | 840 | 780 | 900 | 24 | 6 | 8 |
| 400 | 109 | 18 | 400 | 1260 | 2180 | 940 | 880 | 1000 | 28 | 6 | 8 |
| 450 | 119 | 18 | 450 | 1380 | 2350 | 1080 | 1000 | 1150 | 28 | 6 | 8 |
Performance parameter table
| Performance Parameter | ||||||||||
| Type | Power (KW) | Torque (N·m) | Rated Current (A) | Rated Efficiency (%) | Speed Range (r/min) | Rotational Inertia (kg·m²) | Mass (kg) | Controller Power (kW) | ||
| Rated Speed: 1500 r/min | ||||||||||
| ASM1-132S-15 | 5.5 | 35 | 11 | 87.7 | 50~2000 | 0.012 | 68 | 5.5 | 7.5 | 11 |
| ASM1-132M-15 | 7.5 | 47.7 | 14.9 | 88.7 | 50~2000 | 0.016 | 81 | 7.5 | 11 | 15 |
| ASM1-160M-15 | 11 | 70 | 22.3 | 89.8 | 50~2000 | 0.042 | 126 | 11 | 15 | 18.5 |
| ASM1-160L-15 | 15 | 95.5 | 30.3 | 90.6 | 50~2000 | 0.051 | 147 | 15 | 18.5 | 22 |
| ASM1-180M-15 | 18.5 | 118 | 40.9 | 91.2 | 50~2000 | 0.072 | 187 | 18.5 | 22 | 30 |
| ASM1-180L-15 | 22 | 140 | 48.7 | 91.6 | 50~2000 | 0.083 | 204 | 22 | 30 | 37 |
| ASM1-200L-15 | 30 | 191 | 69.5 | 92.3 | 50~2000 | 0.135 | 274 | 30 | 37 | 45 |
| ASM1-225S-15 | 37 | 236 | 91.3 | 92.7 | 50~2000 | 0.26 | 332 | 37 | 45 | 55 |
| ASM1-225M-15 | 45 | 286 | 107 | 93.1 | 50~2000 | 0.308 | 359 | 45 | 55 | 75 |
| ASM1-250M-15 | 55 | 350 | 135 | 93.5 | 50~2000 | 0.324 | 479 | 55 | 75 | 90 |
| ASM1-280S-15 | 75 | 477 | 173 | 94 | 50~2000 | 0.564 | 582 | 75 | 90 | 110 |
| ASM1-280M-15 | 90 | 573 | 208 | 94.2 | 50~2000 | 0.666 | 642 | 90 | 110 | 132 |
| ASM1-315S-15 | 110 | 700 | 226 | 94.5 | 50~2000 | 2.33 | 994 | 110 | 132 | 200 |
| ASM1-315M-15 | 132 | 840 | 260 | 94.7 | 50~2000 | 2.6 | 1097 | 132 | 160 | 250 |
| ASM1 - 315L1 - 15 | 160 | 1019 | 324 | 94.9 | 50~2000 | 2.86 | 1118 | 160 | 200 | 280 |
| ASM1 - 315L2 - 15 | 200 | 1273 | 387 | 95.1 | 50~2000 | 3.45 | 1169 | 200 | 280 | 355 |
| ASM1 - 355M - 15 | 250 | 1592 | 480 | 95.1 | 50~2000 | 3.48 | 1634 | 250 | 355 | 400 |
| ASM1 - 355L - 15 | 315 | 2005 | 576 | 95.1 | 50~2000 | 4.38 | 1917 | 315 | 450 | 500 |
| Type | Power (KW) | Torque (N·m) | Rated Current (A) | Rated Efficiency (%) | Speed Range (r/min) | Rotational Inertia (kg·m²) | Mass (kg) | Controller Power (kW) | ||
| Rated Speed: 1000 r/min | ||||||||||
| ASM1-132M2-10 | 5.5 | 52.5 | 12.2 | 86 | 50~1500 | 0.016 | 83 | 5.5 | 7.5 | 11 |
| ASM1-160M-10 | 7.5 | 71.6 | 15.3 | 87.2 | 50~1500 | 0.039 | 129 | 7.5 | 11 | 15 |
| ASM1-160L-10 | 11 | 105 | 21.9 | 88.7 | 50~1500 | 0.051 | 150 | 11 | 15 | 18.5 |
| ASM1-180L-10 | 15 | 143 | 32.2 | 89.7 | 50~1500 | 0.078 | 198 | 15 | 18.5 | 22 |
| ASM1-200L1-10 | 18.5 | 177 | 40.2 | 90.4 | 50~1500 | 0.127 | 251 | 18.5 | 22 | 30 |
| ASM1-200L2-10 | 22 | 210 | 47.6 | 90.9 | 50~1500 | 0.132 | 276 | 22 | 30 | 37 |
| ASM1-225M-10 | 30 | 286 | 66 | 91.7 | 50~1500 | 0.32 | 332 | 30 | 37 | 45 |
| ASM1-250M-10 | 37 | 353 | 83.9 | 92.2 | 50~1500 | 0.345 | 410 | 37 | 45 | 55 |
| ASM1-280S-10 | 45 | 430 | 100 | 92.7 | 50~1500 | 0.51 | 528 | 45 | 55 | 75 |
| ASM1-280M-10 | 55 | 525 | 121 | 93.1 | 50~1500 | 0.557 | 580 | 55 | 75 | 90 |
| ASM1-315S-10 | 75 | 716 | 149 | 93.7 | 50~1500 | 2.26 | 984 | 75 | 90 | 132 |
| ASM1-315M-10 | 90 | 859 | 170 | 94 | 50~1500 | 2.54 | 1076 | 90 | 110 | 160 |
| ASM1-315L1-10 | 110 | 1050 | 209 | 94.3 | 50~1500 | 3.25 | 1128 | 110 | 132 | 200 |
| ASM1-315L2-10 | 132 | 1261 | 238 | 94.6 | 50~1500 | 3.45 | 1190 | 132 | 160 | 250 |
| ASM1-355M1-10 | 160 | 1528 | 282 | 94.8 | 50~1500 | 3.48 | 1442 | 160 | 200 | 280 |
| ASM1-355M2-10 | 200 | 1910 | 342 | 95 | 50~1500 | 4.18 | 1639 | 200 | 280 | 355 |
| ASM1-355L-10 | 250 | 2387 | 438 | 95 | 50~1500 | 5.05 | 2160 | 250 | 355 | 400 |
| Type | Power (KW) | Torque (N·m) | Rated Current (A) | Rated Efficiency (%) | Speed Range (r/min) | Rotational Inertia (kg·m²) | Mass (kg) | Controller Power (kW) | ||
| Rated Speed: 750 r/min | ||||||||||
| ASM1 - 160M1 - 7.5 | 4 | 50.9 | 8.5 | 81.9 | 50~1000 | 0.033 | 114 | 4 | 5.5 | 7.5 |
| ASM1 - 160M2 - 7.5 | 5.5 | 70 | 11.4 | 83.8 | 50~1000 | 0.042 | 135 | 5.5 | 7.5 | 11 |
| ASM1 - 160L - 7.5 | 7.5 | 95.5 | 14.7 | 85.3 | 50~1000 | 0.051 | 152 | 7.5 | 11 | 15 |
| ASM1 - 180L - 7.5 | 11 | 140 | 23.4 | 86.9 | 50~1000 | 0.08 | 194 | 11 | 15 | 18.5 |
| ASM1 - 200L - 7.5 | 15 | 191 | 34.8 | 88 | 50~1000 | 0.124 | 254 | 15 | 18.5 | 22 |
| ASM1 - 225S - 7.5 | 18.5 | 236 | 41.2 | 88.6 | 50~1000 | 0.227 | 313 | 18.5 | 22 | 30 |
| ASM1 - 225M - 7.5 | 22 | 280 | 49.8 | 89.1 | 50~1000 | 0.282 | 325 | 22 | 30 | 37 |
| ASM1 - 250M - 7.5 | 30 | 382 | 69.5 | 89.8 | 50~1000 | 0.319 | 420 | 30 | 37 | 45 |
| ASM1 - 280S - 7.5 | 37 | 471 | 80.9 | 90.3 | 50~1000 | 0.532 | 535 | 37 | 45 | 55 |
| ASM1 - 280M - 7.5 | 45 | 573 | 97.8 | 90.7 | 50~1000 | 0.622 | 596 | 45 | 55 | 75 |
| ASM1 - 315S - 7.5 | 55 | 700 | 104 | 91 | 50~1000 | 2.26 | 994 | 55 | 75 | 90 |
| ASM1 - 315M - 7.5 | 75 | 955 | 141 | 91.6 | 50~1000 | 2.6 | 1076 | 75 | 90 | 132 |
| ASM1 - 315L1 - 7.5 | 90 | 1146 | 172 | 91.9 | 50~1000 | 3.06 | 1138 | 90 | 110 | 160 |
| ASM1 - 315L2 - 7.5 | 110 | 1401 | 201 | 92.3 | 50~1000 | 3.25 | 1210 | 110 | 132 | 200 |
| ASM1 - 355M1 - 7.5 | 132 | 1681 | 240 | 92.6 | 50~1000 | 3.71 | 1663 | 132 | 160 | 250 |
| ASM1 - 355M2 - 7.5 | 160 | 2037 | 292 | 93 | 50~1000 | 4.38 | 1880 | 160 | 200 | 280 |
| ASM1 - 355L1 - 7.5 | 200 | 2546 | 330 | 93.5 | 50~1000 | 5.28 | 2070 | 200 | 280 | 355 |
| Type | Power (KW) | Torque (N·m) | Rated Current (A) | Rated Efficiency (%) | Speed Range (r/min) | Rotational Inertia (kg·m²) | Mass (kg) | Controller Power (kW) | ||
| Rated Speed: 1500 r/min | ||||||||||
| ASM1-3551-15 | 355 | 2260 | 510 | 96.3 | 50~2000 | 6.01 | 2175 | 355 | 500 | 630 |
| ASM1-3552-15 | 400 | 2546 | 560 | 96.3 | 50~2000 | 6.75 | 2275 | 400 | 560 | 710 |
| ASM1-4001-15 | 450 | 2865 | 604 | 96.3 | 50~2000 | 10.94 | 2875 | 450 | 630 | 800 |
| ASM1-4002-15 | 500 | 3183 | 676 | 96.4 | 50~2000 | 11.72 | 2980 | 500 | 710 | 900 |
| ASM1-4003-15 | 560 | 3565 | 715 | 96.4 | 50~2000 | 12.66 | 3115 | 560 | 800 | 900 |
| ASM1-4501-15 | 630 | 4011 | 810 | 96.5 | 50~2000 | 18 | 3885 | 630 | 900 | 1000 |
| ASM1-4502-15 | 710 | 4520 | 937 | 96.5 | 50~2000 | 19.53 | 4060 | 710 | 1000 | 1200 |
| ASM1-4503-15 | 800 | 5093 | 1056 | 96.6 | 50~2000 | 21.28 | 4255 | 800 | 1100 | 1320 |
| ASM1-4504-15 | 900 | 5730 | 1183 | 96.6 | 50~2000 | 23.12 | 4465 | 900 | 1200 | 1500 |
| Type | Power (KW) | Torque (N·m) | Rated Current (A) | Rated Efficiency (%) | Speed Range (r/min) | Rotational Inertia (kg·m²) | Mass (kg) | Controller Power (kW) | ||
| Rated Speed: 1000 r/min | ||||||||||
| ASM1-3552-10 | 315 | 3008 | 390 | 96 | 50~1500 | 7.01 | 2430 | 315 | 450 | 500 |
| ASM1-4001-10 | 355 | 3390 | 526 | 96 | 50~1500 | 12.23 | 3055 | 355 | 500 | 630 |
| ASM1-4002-10 | 400 | 3820 | 551 | 96.2 | 50~1500 | 13.27 | 3200 | 400 | 560 | 710 |
| ASM1-4003-10 | 450 | 4297 | 615 | 96.2 | 50~1500 | 14.39 | 3355 | 450 | 630 | 800 |
| ASM1-4501-10 | 500 | 4775 | 682 | 96.4 | 50~1500 | 20.25 | 4140 | 500 | 710 | 900 |
| ASM1-4502-10 | 560 | 5348 | 728 | 96.4 | 50~1500 | 21.99 | 4340 | 560 | 800 | 900 |
| ASM1-4503-10 | 630 | 6016 | 820 | 96.5 | 50~1500 | 24.04 | 4570 | 630 | 900 | 1000 |
| ASM1-4504-10 | 710 | 6780 | 920 | 96.5 | 50~1500 | 26.29 | 4825 | 710 | 1000 | 1200 |
| Type | Power (KW) | Torque (N·m) | Rated Current (A) | Rated Efficiency (%) | Speed Range (r/min) | Rotational Inertia (kg·m²) | Mass (kg) | Controller Power (kW) | ||
| Rated Speed: 750 r/min | ||||||||||
| ASM1-3552-7.5 | 250 | 3183 | 453 | 95.2 | 50~1000 | 7.38 | 2500 | 250 | 355 | 400 |
| ASM1-4001-7.5 | 315 | 4011 | 392 | 95.2 | 50~1000 | 13.7 | 3260 | 315 | 450 | 500 |
| ASM1-4002-7.5 | 355 | 4520 | 530 | 95.6 | 50~1000 | 14.09 | 3425 | 355 | 500 | 630 |
| ASM1-4003-7.5 | 400 | 5093 | 570 | 95.6 | 50~1000 | 16.37 | 3630 | 400 | 560 | 710 |
| ASM1-4502-7.5 | 450 | 5730 | 625 | 95.9 | 50~1000 | 23.12 | 4465 | 450 | 630 | 800 |
| ASM1-4503-7.5 | 500 | 6366 | 690 | 96.2 | 50~1000 | 25.07 | 4685 | 500 | 710 | 900 |
| ASM1-4504-7.5 | 560 | 7130 | 735 | 96.2 | 50~1000 | 27.42 | 4950 | 560 | 800 | 900 |
| Type | Power (KW) | Torque (N·m) | Rated Current (A) | Rated Efficiency (%) | Speed Range (r/min) | Rotational Inertia (kg·m²) | Mass (kg) | Controller Power (kW) | ||
| Rated Speed: 600 r/min | ||||||||||
| ASM1-3552-6 | 200 | 3183 | 336 | 94.7 | 50~750 | 7.38 | 2500 | 200 | 280 | 355 |
| ASM1-4001-6 | 250 | 3979 | 451 | 94.7 | 50~750 | 14.9 | 3425 | 250 | 355 | 400 |
| ASM1-4003-6 | 315 | 5013 | 397 | 95.1 | 50~750 | 16.11 | 3600 | 315 | 450 | 500 |
| ASM1-4502-6 | 355 | 5650 | 524 | 95.1 | 50~750 | 24.35 | 4600 | 355 | 500 | 630 |
| ASM1-4503-6 | 400 | 6366 | 578 | 95.6 | 50~750 | 25.07 | 4750 | 400 | 560 | 710 |
| ASM1-4504-6 | 450 | 7162 | 632 | 95.6 | 50~750 | 27.42 | 4950 | 450 | 630 | 800 |
Cost and Delivery Time
Non-magnetic steel structure, saving approximately 15%–25% in costs
Standard delivery time: 25–30 days
Prototype delivery: 10–12 days
Each motor comes with raw material batch records, performance reports, and test curves, ensuring traceability throughout the entire procurement process.
Structure and Manufacturing Process
Both the rotor and stator utilize a 0.35mm cold-rolled silicon steel lamination structure, reducing eddy current losses.
The precision-machined motor shaft runout is ≤0.01mm, ensuring smooth rotation.
The coils undergo vacuum impregnation to prevent loosening due to high-frequency vibration.
The overall structure is compact, with operating noise below 60dB(A), suitable for applications requiring high quiet operation.
Certifications and Compliance
ISO9001 Quality Management System Certified
Materials comply with RoHS/CE standards
UL/CSA certified versions available upon request
Complete technical documentation: CAD drawings, performance curves, and test reports.
Typical Application Scenarios
Vacuum Pumps and Compressors
Automated Production Equipment: Improves drive response speed and control precision.
High-Temperature Fans and Blowers: Stable operation at 180°C.
Mining and Agricultural Machinery: Dustproof and vibration-resistant, reducing maintenance frequency.
Robots and Robotic Arms: High efficiency and low vibration, improving control sensitivity.
After-sales and Technical Support
One-on-one engineer technical support
Providing thermal analysis reports and drive matching solutions
24-month warranty, providing rapid spare parts support
Full-process follow-up for OEM/ODM projects
Reasons to Choose Zibo AURIC Electric Reluctance Motor
Since its establishment in 2010, AURIC has focused on the research and development of high-performance motors and reducer systems.
In cooperation with Shandong University of Technology, we have deeply explored reluctance motor technology and control algorithms.
We provide not just a motor, but a complete energy-saving, efficient, and stable electric drive solution.
If you are looking for a high-efficiency, non-magnetic electric reluctance motor suitable for high-temperature and heavy-load conditions,
please contact us immediately for customized technical solutions and quotations.
We provide torque curves, efficiency reports, and OEM customized selection suggestions to help you enter mass production faster.
Product Positioning
The ASC50 is a high-performance switched reluctance motor drive system developed by AURIC. It achieves servo control through a high-resolution reluctance resolver for position detection, breaking through key technologies for high-precision speed and torque control. With a capacity range of 4kVA to 1600kVA, it is suitable for various applications such as presses, textile machines, oil pumps, fans, and water pumps.
Core Advantages & Functions
Key Functions: Supports heavy-duty starting, frequent start-stop (≥100 times per minute), forward/reverse switching, and emergency braking; equipped with DSP/CPLD digital platforms for servo control; integrates industrial internet-based remote monitoring (for operation monitoring, control, and data storage).
Technical Features:
Strong Overload Capacity & Low Starting Current: Delivers 200% starting torque at 30% rated current, with an overload capacity of up to 5 times;
Wide Speed Regulation & High Efficiency: Speed range of 50–2000 r/min, with light-load efficiency 20–40% higher than that of asynchronous motors;
High Power Factor & Energy Efficiency: System power factor ≥0.95, maintaining high efficiency across the entire speed regulation range;
High Reliability: Rotor has no permanent magnets or coils, resistant to high temperatures, vibration, and impact loads, with no risk of performance degradation over time;
Precise Control: Speed accuracy ≤0.1%, supporting precise position, speed, and torque control;
Flexible Adaptation: Dynamically adjusts motor operating parameters based on load or process requirements for optimal matching;
Low Maintenance Cost: No special tools required, with downtime reduced by over 70% compared to permanent magnet motors.
Key Performance Indicators
Controller:
Power Supply: 3-phase AC 380V/415V/660V/1140V (50/60Hz);
Capacity: 4–1600kVA;
Control Methods: Speed setting via panel, analog signal, or communication; start-stop control via panel, switch input, or communication;
Speed Accuracy: Speed precision ≤0.1%, variation rate ≤1%;
Interfaces: 6 digital inputs (DI), 4 digital outputs (DO), 4 analog inputs (AI), 2 analog outputs (AO) (expandable); supports RS232/RS485/CAN communication;
Protection: Short-circuit, overcurrent, overload, stall, overheating, overvoltage, undervoltage, overspeed, etc.;
Display: Panel displays real-time speed, parameters, fault codes, etc.; external touchscreen customizable interface available.
Motor:
Power: 4–630kW;
Voltage: DC 514V/561V/891V/1539V (rectified from 3-phase AC);
Insulation: Class 180 (H-class), using corona-resistant enameled wire and VPI (vacuum pressure impregnation) with DuPont solvent-free varnish;
Protection Rating: IP54 (dustproof and splash-proof);
Cooling: Self-fan cooling or independent fan cooling;
Overload Capacity: 1.5× rated torque (≤60s), 2× rated torque (≤30s), 3× rated torque (≤15s); average torque within 300s must not exceed rated torque;
Thermal Protection: Built-in temperature relay or sensor in motor windings, connected to controller for thermal protection.
Application Scenarios of the KSC20 Series Switched Reluctance Motor Speed Control System
General Machinery: Fans, water pumps, oil pumps, compressors, etc.
Textile Machinery: Rapier looms, towel looms, etc.
Oilfield Machinery: Vertical oil pumps, beam pumping units, well testing machines, etc.
Coal Mining Machinery: Coal shearers, endless rope winches, roadheaders, ball mills, crushers, etc.
Press Machinery: Spiral press (brick) machines, mechanical presses, etc.
Machine Tools: Gantry planers, vertical lathes, drilling machines, etc.
Transportation: Electric vehicles
Food Machinery: Unloading machines, mixers, blenders, etc.
Lifting Machinery: Elevators, winches, hoists, conveyor belts, etc.
Power Generation Equipment: Wind power generation
Plastic Machinery: Extruders, injection molding machines, etc.
Casting Machinery: Shot blasting machines, etc.
Papermaking Machinery: Paper machines, calenders, paper winders, etc.
Glass Machinery: Bottle-making machines, etc.
Metallurgical Machinery: Steel rolling mills, etc.
Auxiliary Machinery: Coilers, uncoilers, overhead line laying machines, etc.
Household Appliances: Washing machines, vacuum cleaners, etc.
Widely used in forging machinery, textile machinery, coal mining machinery, oilfield machinery, and other fields.
Hot Tags: electric reluctance motor, China electric reluctance motor manufacturers, suppliers, factory

